下載app免費領取會員
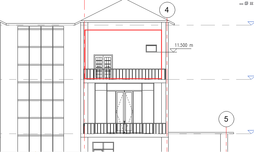
前幾天有個學員在畫完模型出圖的時候遇到這樣的問題:一個樓層平面內不同的構件會出現不同高度,門和窗無法在一個平面圖中顯示!
問題狀況如下圖所示:


像這種情況即使修改樓層平面的視圖范圍,這個門和窗在樓層平面上無法同時顯示。


那應如何解決呢?
今天就教大家一個簡單的辦法
步驟圖文詳解
1、點擊視圖選項卡下平面視圖按鈕旁下拉小三角,然后選擇平面區域命令。

2、選擇矩形繪圖命令,將窗戶的位置框出來,然后點擊√確定。

3、先點擊繪制完成的平面區域,在屬性欄里點擊視圖范圍旁邊的編輯。然后修改成合適的視圖范圍,點擊確定。


4、右鍵平面區域,選擇在視圖中隱藏中的圖元,將平面區域的線條隱藏起來,這樣就不會影響后續出圖了。

現在可以看到,能同時顯示了!

Revit中文網作為國內知名BIM軟件培訓交流平臺,幾十萬Revit軟件愛好者和你一起學習Revit,不僅僅為廣大用戶提供相關BIM軟件下載與相關行業資訊,同時也有部分網絡培訓與在線培訓,歡迎廣大用戶咨詢。
網校包含各類BIM課程320余套,各類學習資源270余種,是目前國內BIM類網校中課程最有深度、涵蓋性最廣、資源最為齊全的網校。網校課程包含Revit、Dynamo、Lumion、Navisworks、Civil 3D等幾十種BIM相關軟件的教學課程,專業涵蓋土建、機電、裝飾、市政、后期、開發等多個領域。
需要更多BIM考試教程或BIM視頻教程,可以咨詢客服獲得更多免費Revit教學視頻。
本文版權歸腿腿教學網及原創作者所有,未經授權,謝絕轉載。
上一篇:Revit技巧 | revit中斜標頭如何創建?在Revit中該如何創建斜標頭族?
下一篇:Revit技巧 | revit標高怎么改小數位數?Revit中如何修改標高的小數位數以及添加單位
推薦專題