下載app免費領取會員
“規程”屬性確定規程專有圖元在視圖中的顯示方式。
使用“規程”屬性來控制以下行為:
根據相關規程在視圖中顯示哪些圖元類別
在視圖中顯示哪些視圖標記
視圖范圍及其剖切面是否控制平面視圖中圖元的顯示
自動隱藏線是否應用于視圖
無論使用包含多個規程的單一模型,還是使用鏈接到其他特定規程模型的模型,“規程”屬性都會影響視圖。
也可以在項目瀏覽器中使用此屬性來組織視圖。 請參見在項目瀏覽器中組織視圖。
若要設置視圖的“規程”屬性,請在項目瀏覽器中選擇視圖名稱,或打開此視圖。 在“屬性”選項板中,“規程”屬性列在“圖形”部分。 從列表中選擇一個值。
下面的示例基于一個模型的標高 1 剖面平面。 在該剖面平面中,綠色箭頭指示對應平面視圖的整個視圖范圍。 藍色箭頭指示主視圖范圍,該范圍已擴展到高于天花板進入正壓送風系統,并低于標高 1。 橙色箭頭指示視圖深度。 (請參見關于視圖范圍。) 在下面示例平面視圖中,“詳細程度”被設置為“精細”,以便更充分地顯示機械、電氣和管道圖元,從而方便說明。

如果需要,可以下載模型以更好地了解“規程”屬性如何影響視圖:view_discipline_example.rvt
基于現有視圖創建視圖時,新視圖將繼承原始視圖的規程。 此規則適用于詳圖索引、剖面、立面和視圖副本。
例如,假設您打開一個結構平面視圖(“規程”屬性設置為“結構”的平面視圖),然后使用“剖面”工具創建平面視圖的一個剖面。 新剖面視圖的“規程”屬性也將被設置為“結構”。
僅當當前視圖的規程與目標視圖匹配時,視圖標記(該符號用于指示剖面、立面和詳圖索引)才會顯示在視圖中。 請參見下面的示例。
“規程”屬性設置為“建筑:
所有圖元類別都會顯示在視圖中,而與其相關規程無關。
例如,視圖顯示建筑柱和結構柱,以及機械、電氣和管道圖元。
在平面視圖中,視圖范圍及其剖切面控制視圖中圖元的顯示。
平面視圖只顯示建筑詳圖索引、剖面和立面的視圖標記。
“顯示隱藏線”視圖屬性設置為“按規程”(默認值)時,不會顯示自動隱藏線。
示例:在以下建筑樓層平面中:
在墻的一側,將顯示電纜橋架。 在墻的另一側,電纜橋架被建筑保護層遮擋住了。
標記顯示“規程”屬性設置為“建筑”的剖面視圖。 該平面不顯示已指定給其他規程的視圖標記。

“規程”屬性設置為“結構”:
所有圖元類別都會顯示在視圖中,而與其相關規程無關。 但是,非結構墻將被隱藏。
例如,視圖顯示建筑柱和結構柱,以及機械、電氣和管道圖元。
在平面視圖中,視圖范圍及其剖切面控制視圖中圖元的顯示。
平面視圖只顯示結構詳圖索引、剖面和立面的視圖標記。
“顯示隱藏線”屬性設置為“按規程”(默認值)時,自動隱藏線顯示在視圖中。
示例:在以下結構平面視圖中:
非結構墻不顯示。 (請與上面所示的建筑平面進行比較)。
“規程”屬性設置為“結構”的剖面視圖的標記顯示。 該平面不顯示已指定給其他規程的視圖標記。
顯示隱藏線以展示樓板下面的結構框架圖元,因為此平面的視圖范圍延伸到標高 1 之下。

當“規程”屬性設置為“機械”、“電氣”或“管道”時:
機械、電氣和管道類別圖元在視圖中的顯示取決于“對象樣式”中的設置。
天花板圖元不會顯示在平面視圖中。
所有其他類別顯示為半色調。 不能使用選擇框來選擇這些半色調圖元, 而要分別選擇每個半色調圖元。
在樓層平面視圖和詳圖索引視圖中,視圖范圍內的大多數機械、電氣和管道圖元都繪制在其他圖元頂部,無論剖切平面是否與這些圖元相交。 然而,管道裝置不以此方式覆蓋其他圖元。
平面視圖僅顯示具有匹配規程的詳圖索引、剖面和立面的視圖標記。
圖元隱藏線的控制如下所述:
對于機械、電氣和管道圖元,隱藏線在視圖中是否顯示,取決于“顯示隱藏線”視圖屬性以及“機械設置”和“電氣設置”對話框的“隱藏線”窗格中的其他設置。
對于所有其他類別的圖元,則不顯示隱藏線。 對于這些圖元,功能區禁用了“顯示隱藏線”和“刪除隱藏線”工具。
內部間隙” 和 “外部間隙(光暈)設置為機械、電氣和管道圖元定義使用 “ 隱藏線 ” 窗格中的 “ 機械設置” 和 “電氣設置” 對話框。
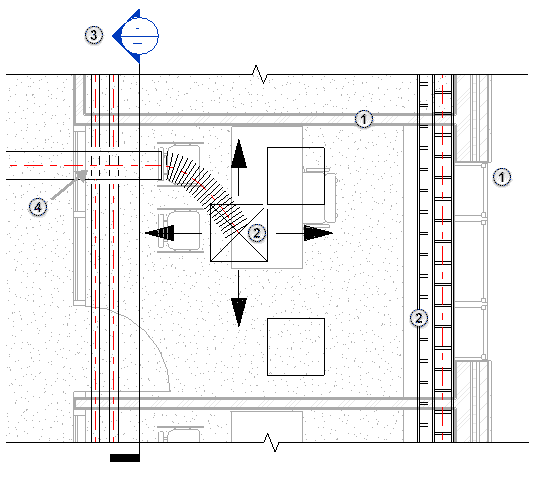
示例:在以下機械平面視圖中:
建筑和結構圖元(墻、門、窗、家具)基于“視圖范圍”以半色調顯示。 天花板圖元未顯示在視圖中。
機械、電氣和管道圖元根據“對象樣式”中的定義顯示。 無論這些圖元在模型中的實際垂直位置如何,這些圖元將覆蓋其他圖元。
“規程”屬性設置為“機械”的剖面視圖的標記顯示。 該平面不顯示已指定給其他規程的視圖標記。
機械、電氣和管道圖元的隱藏線顯示在視圖中。

“規程”屬性設置為“協調”:
所有圖元類別都會顯示在視圖中,而與其相關規程無關。
例如,視圖顯示建筑柱和結構柱,以及機械、電氣和管道圖元。
在平面視圖中,視圖范圍及其剖切面控制視圖中大多數圖元的顯示。
視圖范圍內的一些機械、電氣和管道圖元會顯示,無論剖切面是否與這些圖元相交。
此外,剖切面上方的機械、電氣和管道圖元繪制在其他圖元頂部。 對于這些圖元,其繪圖順序由視圖標高的相對高度來確定。 如果這些圖元出現在剖切面下方,將按與剖切面的距離來確定繪圖順序。
平面視圖顯示所有規程的詳圖索引、剖面和立面的視圖標記。
“顯示隱藏線”視圖屬性設置為“按規程”(默認值)時,不會顯示自動隱藏線。
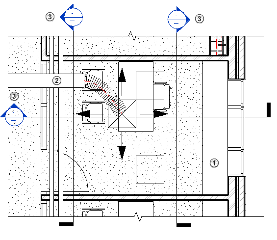
示例:在以下協調平面視圖中:
所有規程的圖元根據視圖范圍在視圖中顯示。
機械、電氣和管道圖元會顯示,并根據上述規則覆蓋其他圖元。
所有規程的剖面視圖的標記顯示。

本文版權歸腿腿教學網及原創作者所有,未經授權,謝絕轉載。
上一篇:CAD教程 | CAD2023軟件無法修剪倒圓角的解決方法
下一篇:Revit技巧 | Revit官方教程丨將透明應用于模型圖元類別的面
推薦專題