下載app免費領取會員
這次的技巧,是在模型中使用鋼筋編號和分區。在我們學習在模型中使用之前,先快速了解一下可用于明細表和注釋的鋼筋編號。
鋼筋圖元在放置時進行編號,編號允許相同的鋼筋圖元對于明細表和標記匹配。
在指定的分區中,鋼筋、鋼筋網和鋼筋接頭編號與具有相同類型、尺寸、材質和形狀的鋼筋匹配。以下剖面視圖中的標記顯示了此編號匹配關系。

鋼筋圖元的編號可能顯示在“屬性”選項板的“標識數據”下。鋼筋、鋼筋網片和鋼筋接頭將在項目中保持單獨的編號序列。
您可以計劃、計數和標記鋼筋數。

注:您可以從項目中刪除鋼筋圖元,鋼筋編號將被保留,除非使用“鋼筋編號”對話框中的“刪除間隙”工具明確更改。

1.在“屬性”選項板中查看鋼筋或織物圖紙編號。
2.將分區指定給鋼筋。
3.過濾鋼筋分區和編號。
4.使用“鋼筋編號”對話框中的“過濾器”分區字段。
5.使用“鋼筋編號”對話框來調整鋼筋和鋼筋網編號序列。

鋼筋標識的編號根據建筑的設計方式或構建方式具有各種組織目的。鋼筋圖元在放置時進行編號,從而允許對明細表和標記匹配相同圖元。如果更改鋼筋或將鋼筋指定給其他分區,則鋼筋編號可能會基于新分區的匹配策略和設置而更改。
在指定的分區中,鋼筋和鋼筋網編號與具有相同類型、尺寸、材質和形狀的鋼筋匹配。您可以在“構造”下的“屬性”選項板中查看這些編號。此剖面視圖中的標記顯示了此編號匹配關系的簡化。如果更改類型,則形狀、大小或材質也會更改編號。
在放置鋼筋或鋼筋網片之前,可以指定分區。從現有分區中選擇,或鍵入分區名稱以創建一個分區。如果已放置鋼筋,您可以選擇它,然后以類似方式指定一個分區。

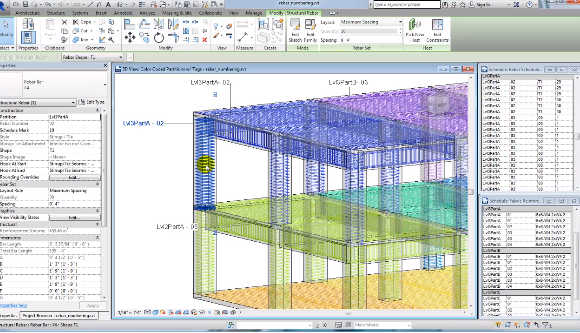
可以過濾鋼筋分區和編號、將其列入明細表并將其用作標簽類別。這通常有助于參照要交付的鋼筋類型、交付位置和交付量。在此結構中,基于標高和區域的九個分區已過濾為以不同顏色顯示鋼筋。現在放置鋼筋時,如果鋼筋未指定到正確的分區,這一點會相當明顯。
使用“鋼筋編號”對話框來調整鋼筋或鋼筋網片編號序列。過濾器分區字段可縮小對話框中顯示的編號序列范圍。按需為每個序列指定第一個數字,并為編號序列指定最小位數。更新的編號方案將傳遞到明細表和標記。此外,觀察序列中出現編號間隙的位置。這些用星號表示。通過重新編號序列將其刪除。
鋼筋現場的設計、排序、制造、階段化、存儲和最終放置位置都會對承包商的量化需求產生影響。
本文版權歸腿腿教學網及原創作者所有,未經授權,謝絕轉載。
下一篇:Revit技巧 | Revit鋼筋建在哪?Revit多平面鋼筋你會創建嗎?
推薦專題