下載app免費領取會員
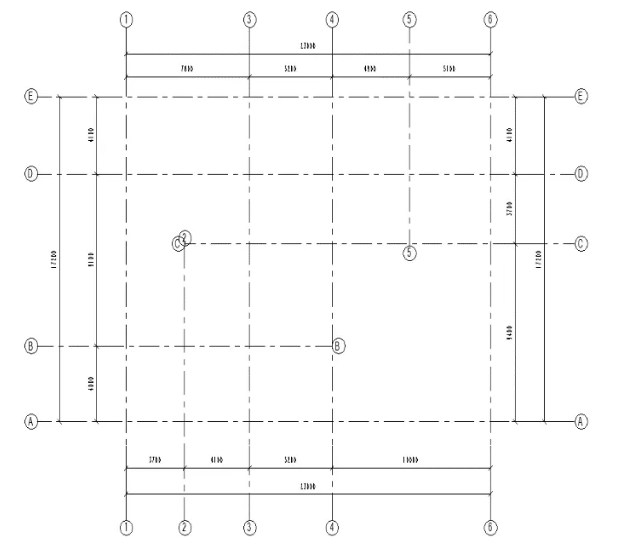
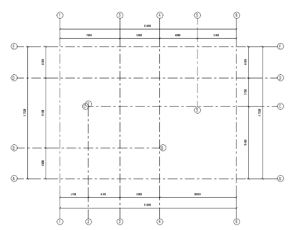
在使用Revit軟件建模過程中,我們會經常要給軸網添加標注。在這個過程中我們會遇到這樣一個問題:如果每一個樓層平面視圖的軸網都相同的話,那么我們在添加尺寸標注時,通常采用的方法是點擊注釋選項卡→對齊→點擊軸網進行標注,或者是在快速訪問工具欄中選擇對齊標注的工具→再選擇軸網進行標注。如果每一個視圖都按照上述兩種辦法進行標注,那么工作量會特別大。下面,我們來學習如何快速的創建出相同樓層軸網的尺寸標注。以下圖為例:

一、首先選中軸網的標注,任意一個標注即可。然后點擊右鍵找到選擇全部實例,選擇在視圖中可見,這樣該層平面視圖內的軸網標注我們就已經全部選中了。



二、然后在功能區中找到“復制到剪貼板”工具,選擇從剪貼板粘貼,選擇與選定的視圖對齊。

三、選擇相對應的視圖點擊確定即可




本文版權歸腿腿教學網及原創作者所有,未經授權,謝絕轉載。
上一篇:Revit技巧 | Revit創建參數化族怎么做?Revit族參數化設置部件是否可見
推薦專題