下載app免費領取會員
2.2繪制管道不可見的原因
調整視圖范圍、平行管道的作用、軟管的作用及繪制
2.2.1調整視圖范圍
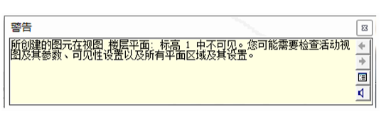
在繪制管道時,軟件提示“所創建的圖元在視圖 樓層平面:標高F1 中不可見”。如圖2.2-1所示。

2.2-1
這是因為,我們所繪制的管道標高不滿足當前視圖的視圖范圍限制,在當前視圖中無法顯示。我們可以通過單擊“Esc”退出繪制狀態,找到“屬性”面板中的“視圖范圍”,單擊“編輯”打開“視圖范圍”選擇框來確定或者調整當前視圖的視圖范圍。如圖2.2-2所示。

2.2-2
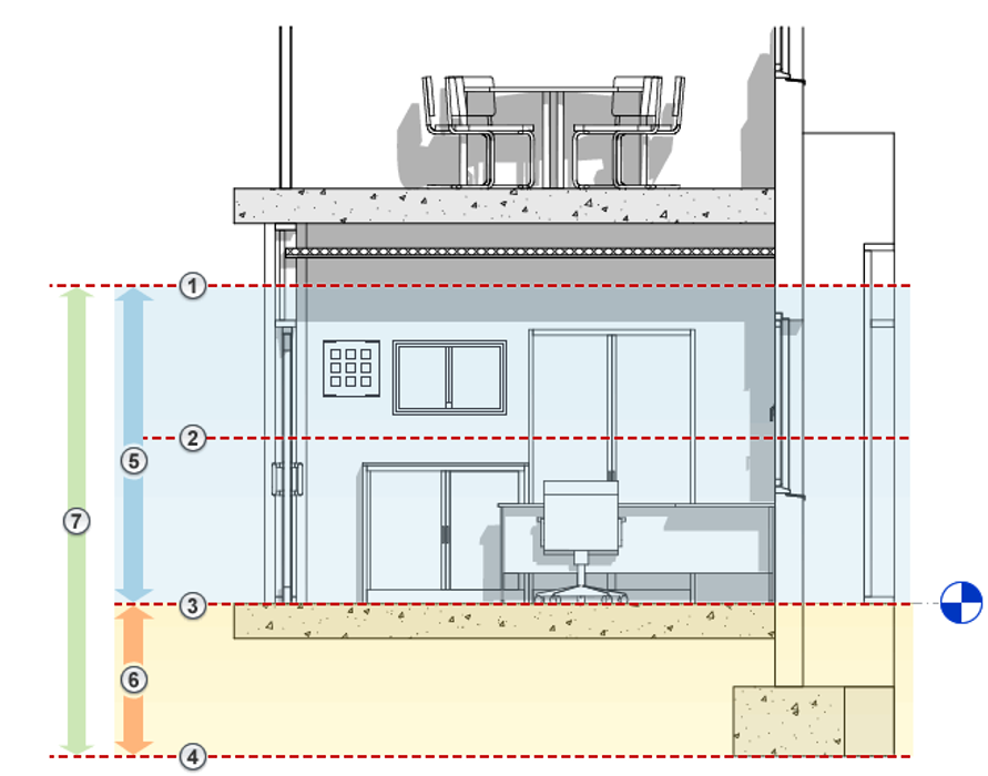
每個平面圖都具有視圖范圍屬性,該屬性也稱為可見范圍。 定義視圖范圍的水平平面為“俯視圖”、“剖切面”和“仰視圖”。 頂剪裁平面和底剪裁平面表示視圖范圍的最頂部和最底部的部分。 剖切面是一個平面,用于確定特定圖元在視圖中顯示為剖面時的高度。 這三個平面可以定義視圖范圍的主要范圍。視圖深度是主要范圍之外的附加平面。 更改視圖深度,以顯示底裁剪平面下的圖元。 默認情況下,視圖深度與底剪裁平面重合。
相關標高可以理解為繪制模型時的參照標高,那么“頂部”高度就是“相關標高”加上偏移值所在的高度。超過這個高度的圖元就將不可見。
同理,“底部”高度就等于“相關標高”加上偏移值,低于此高度的圖元將不可見。
“剖切面”就是對此范圍內的某一位置進行剖切,剖切面以下就是我們可見的圖元。如圖2.2-3所示。


2.2-3
“剖切面”的高度設置要等于或小于頂部范圍,并且等于或大于底部范圍;“視圖深度”要等于或小于底部范圍,這樣才能實現視圖范圍的設置。否則會出現錯誤的警告。如圖2.2-4所示。

2.2-4
2.2.2平行管道的作用
在“系統”選項卡下方的“衛浴和管道”面板中可以找到“平行管道”工具。如圖2.2-5所示。

2.2-5
“平行管道”工具用于根據初始管路創建管道的平行管路。所以,在使用“平行管道”工具時,需要先繪制或選擇一根管道作為初始管路。然后單擊“平行管道”工具,在“修改/放置平行管道”上下文選項卡中,我們可以設置水平/垂直數及水平/垂直偏移距離。如圖2.2-6所示。

2.2-6
接著單擊初始管路,要選中整個管路,可以將光標放置在管段上,然后按Tab鍵。如圖2.2-7所示。

2.2-7
繪制完成后如圖2.2-8所示。

2.2-8
2.2.3軟管的作用及繪制
軟管可用于高層建筑物排水通風、供熱等管道系統,但現在生活中的的應用也比較常見了。軟管的作用可以分為三點:①減少管道的安裝應力;②補償管道的位置移動;③吸收管路系統的震動。
軟管的繪制方法和管道的繪制方法基本一致。單擊“系統”選項卡,在“衛浴和管道”面板中單擊“軟管”功能工具(快捷鍵:FP)。接著將會彈出“修改/放置軟管”上下文選項卡,我們可以在“修改/放置軟管”選項欄中修改軟管的直徑大小以、偏移值及標高(僅限三維視圖、立面視圖和剖面視圖指定參照標高)。如圖2.2-9所示。

2.2-9
設置完成后,在繪圖區域單擊鼠標左鍵,定位軟管的起點位置,接著向任意方向繪制軟管,再次單擊鼠標左鍵確定軟管的端點。如圖2.2-10所示。

2.2-10
繪制完成后,按Esc鍵可退出繪制狀態。如果想要編輯或修改軟管,則只需要單擊繪制完成的軟管,將進入“修改/軟管”狀態,在“修改/軟管”選項欄中可以調整軟管的直徑大小。如圖2.2-11所示。

2.2-11
在繪圖區域中,通過移動軟管的頂點,可以調整軟管的管路以及長度。如圖2.2-12所示。

2.2-12
本文版權歸腿腿教學網及原創作者所有,未經授權,謝絕轉載。
上一篇:BIM等級考試二級設備考試圖文教程2.1如何繪制管道?
下一篇:成都市房屋使用安全檢查評估辦法
推薦專題